หมายเหตุ
  1. เป็นการขายตามสภาพ ผู้ซื้อมีหน้าที่ตรวจสอบรายละเอียดทรัพย์สินที่จะซื้อ ณ สถานที่ตั้งทรัพย์สิน และถือว่าผู้ซื้อได้ทราบถึงสภาพทรัพย์นั้นโดยละเอียดครบถ้วนแล้วก่อนเสนอซื้อ
  2. บริษัทขอสงวนสิทธิ์ในการเปลี่ยนแปลงราคาและรายละเอียดอื่น ๆ โดยไม่ต้องแจ้งให้ทราบล่วงหน้า
กลุ่มทรัพย์สิน

ทรัพย์สินรอขาย

รหัสทรัพย์สิน

67IAM-B-0305

ระดับ

-

ราคาขาย

500,000

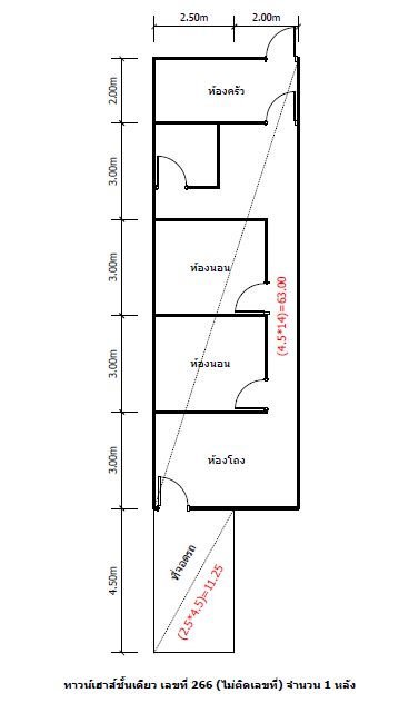
ประเภททรัพย์

ทาวน์เฮ้าส์

ขนาดที่ดิน

21.00 ตร.ว.

พื้นที่ใช้สอย

63.00 ตร.ม.

ชื่อโครงการ

-

ที่ตั้งทรัพย์

266 ถนนสายละงู - ปากบารา ละงู ละงู สตูล 91110

เลขที่เอกสารสิทธิ์

6025

เอกสารเผยแพร่ประกอบการซื้อทรัพย์
พิมพ์/ดาวน์โหลดข้อมูลในหน้านี้
 พิมพ์/ดาวน์โหลด
แชร์

ติดต่อเจ้าหน้าที่

ซื้อตรง ขายตรง ไม่มีระบบนายหน้า

นางสาวพิมพ์พิยดา อัครเมธายุทธ
ผู้ชำนาญการ 1 ส่วนจำหน่ายทรัพย์สิน

คำนวณสินเชื่อ

{{number_format(PMT(interest_rate/12/100,period*12,loan))}}

หมายเหตุ การคำนวณ และค่าใช้จ่ายเป็นการคำนวณโดยประมาณเพื่อใช้อ้างอิงเท่านั้น

ทรัพย์ในจังหวัดเดียวกัน
ทรัพย์ใกล้เคียงอื่นๆ